モデルハウス
【札幌市手稲区】手稲区稲穂4条2丁目戸建リノベーション住宅
12月1日から内覧できます。
(2498万円税込)好評販売中!
| 営業時間 | 10:00〜17:00 |
|---|---|
| 定休日 | 水曜日 |
| 所在地 | 【住所】北海道札幌市手稲区稲穂4条2丁目14-1 【地番】北海道札幌市手稲区稲穂4条2丁目89番57 |
| アクセス | JR手稲 徒歩18分 バス手稲稲穂2条2丁目 徒歩7分 |
| 価格 | 2498万円(税込) 外構(駐車場アスファルト塗装)2026年4月に売主負担で施工予定です。 |
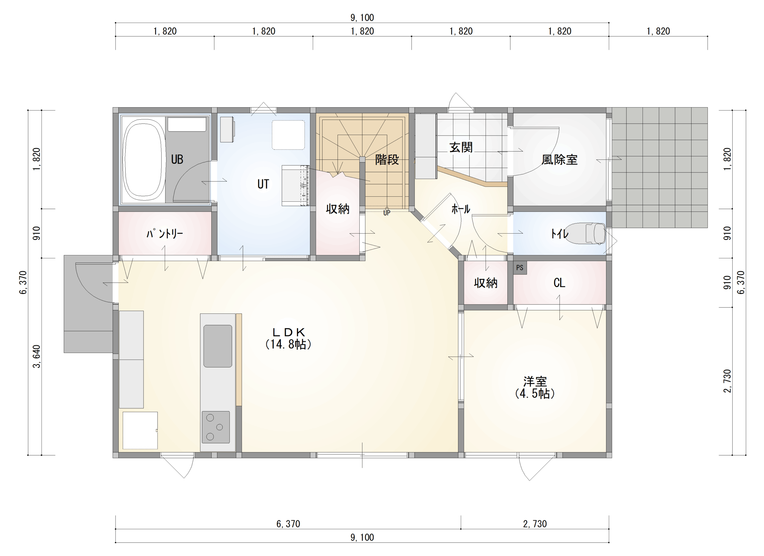
間取り図
ギャラリー
物件の詳細情報
| 床面積 |
|
|---|---|
| 構造 | 木造亜鉛メッキ鋼板葺2階建 |
| 建築年月日 | 2013/5/15 |
土地の詳細
| 面積 | 250.51㎡(75.77坪) |
|---|---|
| 学区 | 札幌市立稲穂小学校 徒歩18分 札幌市立稲穂中学校 徒歩4分 |
| 都市計画区域 | 市街化区域 |
| 用途地域 | 第一種低層住居専用地域 |
| 建ぺい率 | 40% |
| 容積率 | 80% |
| 地目 | 宅地 |
| 法令上の制限 | 景観法/日影制限景観法/道路斜線制限/北側斜線制限/建築基準法第22条・23条指定区域/戸建住環境保全地区 |
| 私道負担 | なし |
| 設備 | 電気/個別プロパンガス/公共上下水道 |
| 取引態様 | 売主 |
| 備考 | *リフォーム工事内容:便器交換、洗面化粧台交換 ガスコンロ交換、クロス全部屋貼替、 UTクッションフロア張替、シリンダー交換 *本物件の西側塀が隣地に約5.5cm越境し、南側隣地まで伸びており、越境に関する 覚書が隣地所有者と交わされており、これを買主様に継承頂きます。 *駐車場アスファルト舗装工事は2026年4月売主負担で施工予定です。 |

